PNRR MIC – M4.C1.I1.2 – “Piano estensione del tempo pieno e mense” – finanziato dalla Unione Europea – NEXTGENERATIONEU –
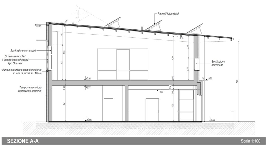
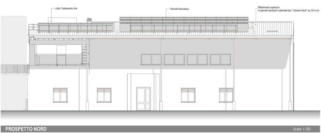
“MIGLIORAMENTO SISMICO E EFFICIENTAMENTO ENERGETICO MENSA SCUOLA PRIMARIA BAGNOLO IN PIANO”
CUP: D43D2200090001
Progettazione Generale:
Ing. Alessandro Pignagnoli
Progetto Strutturale:
Ing. Alessandro Pignagnoli
collaboratore Ing. Giacomo Pignagnoli
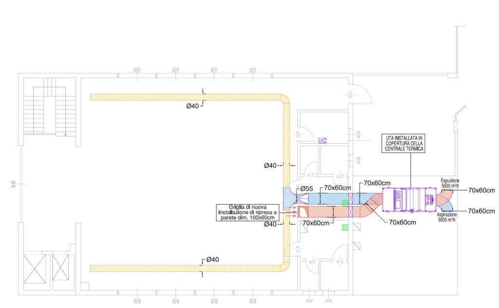
Progetto Miglioramento Energetico – Imp. Elettrici – Imp. Meccanici:
Ing. Andrea Lombardini
collaboratore Per. Ind. Mauro Reggiani – Studio Tec2 Srl
Direzione Lavori Generale e Strutturale:
Ing. Alessandro Pignagnoli
Direzione Lavori Miglioramento Energetico e Impianti:
Ing. Andrea Lombardini


























